Get Started
DIN Resilient Gate Valve

Size Range:DN700-DN1000

Pressure: PN10/16

Body Material:DI

Seat Material:EPDM

Disc Material:DI+EPDM

Stem Material:2Cr13

Features: The valve body with high precision and the valve seat is welded with stainless steel, which is more wear-resistant and has a longer service life.It is mainly used in urban construction、Hydraulic engineering、water supply and drainage,electric power,water treatment .

Get a Quote
Product Technical Catalogue
Product advantages

1. Valve body is made of ductile iron material superior to the national standard. Tensile strength is 450Mpa and elongation is more than 10%. Not easy to crack, freeze crack; no damage caused by transportation.


2. The inside and outside of the valve are coated with epoxy painting, and the thickness of the spray is up to 250μm, which effectively prevents corrosion and rust caused by contact between valve body and medium, and can be used in the sewage system.


3. The wedge is coated with EPDM, the EPDM proportion can reach 50%,steable and good resilient.


4. 3 o-rings are used on 2Cr13 stem, can reduce friction, prevent leakage. Can replace the seal without stopping the water.


5. The stem and positoning device use brass material, operate easily, prevent block.


6. From the raw material to the finished product, every process has strict inpection.


7. Pango brand product quality is covered by China Pacific Insurance with two million dollars. Two years warranty, pay two back if one bad within two years. Any quality problems of the product itself, we will pay without conditions.


Parameters

15-1.3.png


Parameter Information:

1. Executive standard:

NameDesign & ManufactureFace to Face LengthPressure TestEnd Flange
Reference StandardDIN 3352DIN 3202DIN 3230DIN EN 1092


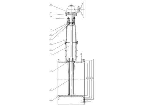
2. Material of Main Parts:

Name1-Body2-Seat3-Wedge4-Stem5-Handwheel
MaterialDIEPDMDI+EPDM2Cr13DI


3. Dimensions:

Nominal SizeLdcgfn-ΦdT
DNNPS(inch)DINBSPN10PN16PN10PN16PN10PN16PN10PN16PN10PN16
F4F5BS5163
700 28''430900610895895840840794794524-3124-3732.539.5
800 32''470100066010151015950950901901524-3424-413543
900 36''5101100711111511151050105010011001528-3428-4137.546.5
1000 40''5501200813123012301160117011121112528-3728-444050