Get Started
PTFE Lined Ball Valve

Size Range:DN15-DN250

Pressure: PN16

Body Material:Cast steel/Stainless Steel

Seat Material:PTFE

Features: Petroleum, chemical industry, medicine, environmental protection, etc

Get a Quote
Product advantages

1.The valve body is a precision casting valve body, qualified material, good appearance.


2.Using FEP lining, which has extremely high chemical stability.


3.Full-bore construction for leak-free shut-off over the entire pressure range.


4.Ball and stem are cast in one piece, which increases reliability and eliminates the possibility of valve stem punching out, ensuring safety.


5.Using a special injection molding process, the seal is reliable and zero leakage.

Parameters

0000.jpg


Parameter Information:

1. Executive standard:

NameDesign and ManufactureFace to Face LengthPressure TestEnd Flange
Reference StandardGB/T 12237/API 608GB/T 12221GB/T 13927HG/T 20592


2. Material of Main Parts:

NameBodySealingBall
MaterialCF8+FEPPTFESS304+FEP


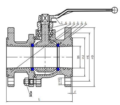
3. Dimensions:

SIZE
DNNPSLΦDΦKΦdn-Φd
151/2''1309565454-14
203/4''14010575554-14
251''15011585654-14
321  1/4''165135100784-18
401  1/2''180145110854-18
502''2001601251004-18
652  1/2''2201801451208-18
803''2501951601358-18
1004''2802151801558-18
1255''3202452101858-18
1506''3602802402108-22
2008''40033529526512-22
25010''45040535532012-26