Get Started
Diaphragm Valve

Size Range:DN15-DN250

Pressure: PN10/16

Body Material:WCB

Seat Material:PTFE

Disc Material:WCB

Stem Material:2Cr13

Get a Quote
Product Technical Catalogue
Product advantages

1. The preparation of the diaphragm, rubber mixing, vulcanization of the entire process are produced by themselves to ensure the quality of rubber


2.  according to different media to choose a variety of corrosion resistant or wear-resistant materials, diaphragm materials rubber and polytetrafluoroethylene, suitable for strong acid, alkali and other strong corrosive media regulation.


3. all the diaphragm raw materials are original authentic materials, do not use secondary recycling materials


4. All teflon raw materials adopt domestic first-line brands.


5. From the raw material to the finished product, every process has strict inpection.


6. Pango brand product quality is covered by China Pacific Insurance with two million dollars. Two years warranty, pay two back if one bad within two years. Any quality problems of the product itself, we will pay without conditions.


Parameters

55-3.png


Parameter Information:

1. Executive standard:

NameDesign and manufactureFace To FacePressure testing standardFlange
Reference StandardGB/T 12235GB/T 12221-2008GB/T 13927-2008GB/T 9113-2010/ EN1092-1


2. Material of Main Parts:

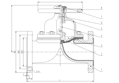
Name1-Body2-Diaphragm3-Bonnet4-Shaft5-Actuator
Materials and instructionsWCBPTFEWCB2Cr13QT450


3. Dimensions:

SizeLPN10
DNNPSDD1D2Z-d
151/2"1259565454-14
203/4"13510575554-14
251"14511585654-14
321-1/4"160140100754-18
401-1/2"180150110854-18
502''2101651251004-18
652  1/2''2501851451204-18
803''3002001601358-18
1004''3502201801558-18
1255''4002502101858-18
1506''4602852402108-23
2008''5703402952658-23
25010''68039535032012-23







SizeLPN16
DNNPSDD1D2Z-d
151/2"1259565454-14
203/4"13510575554-14
251"14511585654-14
321-1/4"160140100754-18
401-1/2"180150110854-18
502''2101651251004-18
652  1/2''2501851451204-18
803''3002001601358-18
1004''3502201801558-18
1255''4002502101858-18
1506''4602802402108-23
2008''57034029526512-23
25010''68040535532012-26